首页
健康饮食
健康美食
营养滋补
食疗
饮食禁忌
烹饪/菜谱
觅食/购物
扩展阅读
美味
好吃的
解馋
水果
酸
甜
苦
辣
香
咸
【周四】超市水果半价
泰国水果 风情万种
如何给婴儿喂水果
各种水果蔬菜沙拉做法
炖汤、做甜品、熬果酱、煮酸梅汤都少不了的东西,其实是它!
不大吃特吃这6种酸味食物,你的灵魂不会原谅你!
麻辣过瘾的爆款“沸腾虾” 做法!非常简单,吃一次绝对忘不了
麻辣财经:税收不是唐僧肉,“黑名单”后果很严重!
麻辣小龙虾,只卖“1元”鲜香麻辣 酣畅淋漓,川菜的狂欢盛宴!!
人流术后的饮食禁忌
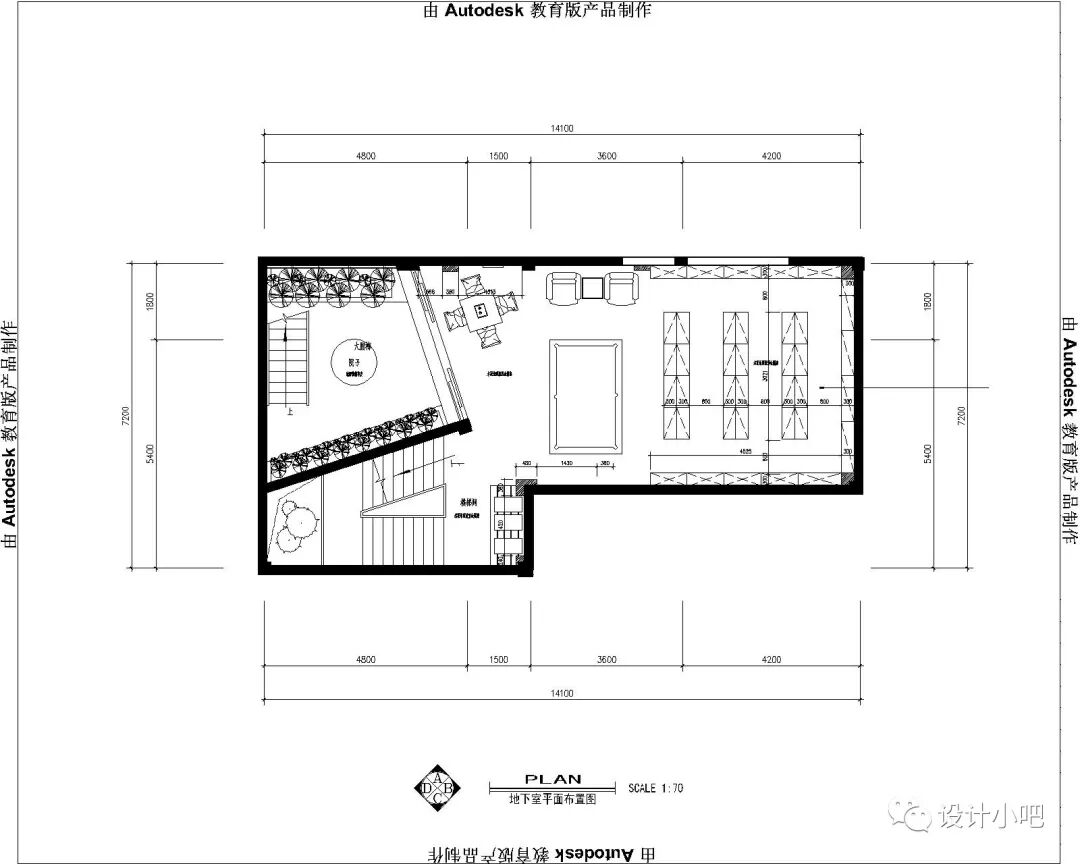
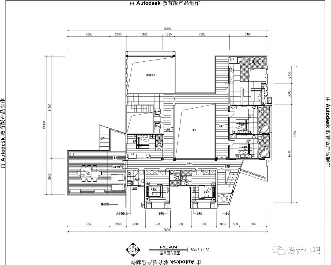
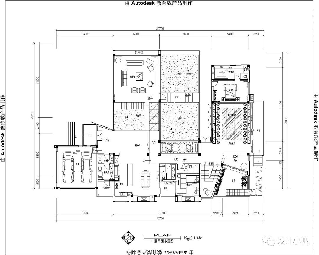
元一水果别墅
来源:设计小吧
2018-4-18 9:16:47
...
微信公众号...
进入公众号——点击,“设计周边”—“线上活动”,即可参与抽红包活动哦!
水果
©2017 Wochan.la ©版权所有 Email:admin@543yy.com